http://devileliet.gozaru.jp/   
 
  INDEX    PROJECT REPORT    MP3 DOWNLOAD    WORKS CD    DTM LABOLATORY    ABOUT US    BBS    LINKS    CONTACT  

 
 

D T M  L A B O R A T O R Y

防音ドア2

簡単な防音ドアをDIYで自作して部屋のドアを2重扉にします。

効用としては、思いっきり奇声を発したり、堂々とアニソンを作ったりできるようになります。



早速木材切ってます。
今回はいわゆるベニヤ板(シナ合板)×2と1×4材×3、4本を使います。


シナ合板を切ってます。
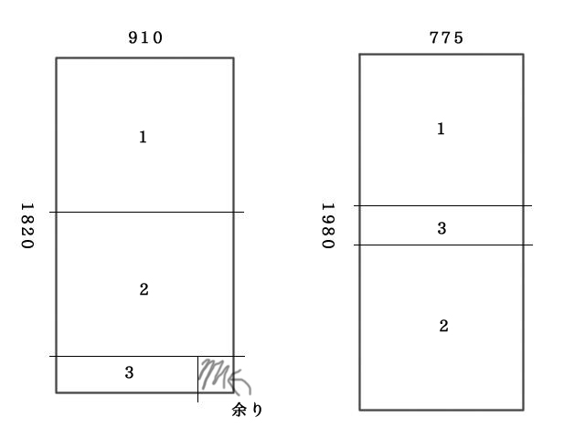
今回非常に頭を悩ませたのが、ベニヤ板の長辺(1820mm)は流石にウチでは真っ直ぐ切れなかろうという点。その辺に売ってるベニヤは1820×910が一般的なのですが、そこからなんとか1980×775のドアを作らないといけなかったんですね。


そこであれこれ考えて、ざっくりですがこう切ればいけるじゃん!って図です。
コレを思いつけるかどうかが全てだった気がします。これなら玄関のスペースでカットできる。


切り出した木材を並べて組んでみてるとこです。
割ときちっと切れたんでないかと思います。大変よく出来ましたw 裏表あるので合板はもう1セットあります。


蝶番の溝を掘ってます。彫刻等で頑張りました。
防音ドアということで結構な重さになることも考えられるので大き目の物を3つ使う事にしました。つまりこの作業があと2回orz


最終的にこういう構造になりました。
写真で見える面の裏側(ベニヤ側)から1×4材にベニヤをネジで止めていく感じで接合しました。


気が早い方なのでまだ出来てないのに取り付けてみてます(笑)
早い目に問題を発見して修正できるので何かとメリットあるんですってば

既に非常に重いですので、床との隙間の確保とかは何かを下にかまさないととても取り付けできません、完成してからよりもよほど位置決めが楽なので先にやっといた方が賢そうです。


かんぺきw


表の合板を切り出してます。
表側はちょっと大きめにして隙間が出来ないようにする念の入れよう。1cmほど大きいので差し引きはみ出す部分が戸辺りにもなります。


グラスウール代をケチろうとして新聞を詰めてみているところです。まるで効果がない為その後お蔵入りになりました。
吸音材を遮音材(この場合合板)でサンドする構造が防音の基本です。空気層、或いは吸音層を厚く取れれば低音をシャットアウトできる。今回は2cmぐらいしかないですけど元からある扉と2重扉になるんで結構期待してます。


表の合板をネジ止め、黒い点にしか見えないけどネジです。


えーとコレの正式名称がわからないです(汗
ハンドル、ノッチ、ドアノブ?
元からある扉までの空間、2重扉の内側にあたる空間があまりスペースがないのでこの形状でないといけませんでした。
1500円ぐらいしたので今回ここが一番お金掛かってます。他の方法で安く済ませることも出来るけどコレ1回付けてみたかったんですよw


設置箇所に穴を開けました。普通にドリルで穴開けてから100均工具で拡大するいつもの方法です。工具については他の記事で書いたと思うので割愛します。
充電式ドライバーで1×4材に横穴を掘った訳で、死ぬほど時間がかかりました(笑)
あと微妙に彫刻等で溝掘ってる、今回なんか仕事が丁寧ですね


ノッチを装填!カッコいい!


ドアノブが通る穴がバシッと真ん中にくれば成功。
あとはハンドルだかノッチだかドアノブだかのマニュアルを見てその通りに取り付けるだけ、コレほんとにマニュアルかよって不親切具合はご愛嬌です。


さてグラスウールを買ってまいりました。近所のコーナンがなんかバラ売りやっててめちゃ助かってるんですよ。最近売り場模様替えしてバラ売りなくなっちゃったんですが(涙)


グラスウールを装填。


めでたく完成です! 後光が差してます!
ひゃーかっけぇw
めんどくさいので色とか塗りません!



閉めたところ。非常にくーるです。

さて、肝心の防音性能ですが、
綺麗に出来た割には期待した程の効果はありませんでしたorz
普通の家のフラッシュドアとかよりはいい感じですけどガチな防音ドアと銘打つには少々役不足、元扉と両方締め切ってやっと扉越しの会話が困難って程度なので、防音ブースとかにはきついですね。

もう原因はどう考えてもシナ合板の遮音性能が低すぎます。つくづく石膏ボードは良く出来た建材ですね、今回はスペースの関係もあるし合板使うしかこの構造物は作れなかったので致し方ないです。特段理由がなければ防音には石膏ボード使った方がいいというのがはっきりしました。

改善の余地があるとすれば2重扉の間の空気層になんとか吸音材を入れるか、遮音シートぐらいでしょうか、鉛シートぐらいでないとあんまり効果出そうな気がしないので闇雲に重くするのもどうかと思ったりします。やっぱ石膏ボード凄いっす。





以上。防音ドア2でした。



 
 
ALL RIGHTS RESERVED:YAMAGEN'S DEVILELIET   背景画:(c)S.YONEHARA